汽車制造

作為國產高端智能裝備的龍頭企業,華中數控和東莞隆凱此次傾力打造模具智能工廠,即將高調亮相DMP2016,用中國大腦展示中國智慧,全面呈現模具智能工廠全要素解決方案,示范未來工廠整體模式,涵蓋從從自動化智能化加工單元到自動化生產線,從物流到信息流,從先進制造裝備到智能軟件等多元的自動化集成解決方案,促進整個模具行業水平的快速提升。
一、展會基本情況
1、展覽名稱:第十八屆東莞國際模具展(DMP2016)
2、時間:2016年11月29日—12月2日
3、地點:廣東省東莞市厚街鎮 廣東現代國際展覽中心
4、展位號:3館3A501 ?
5、展示主題:華中數控-隆凱智能? 中國模具智能制造領導者

華中數控展位效果圖

?
二、展品介紹:
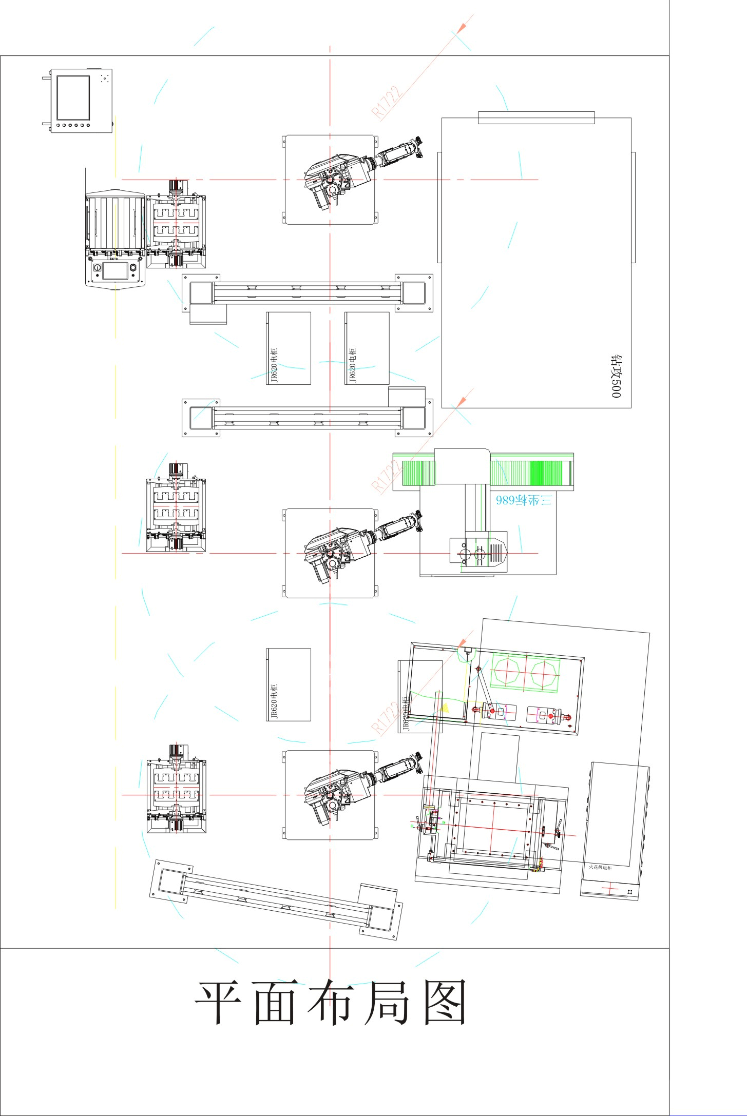
模具智能制造自動化生產線:1臺鉆攻中心、一臺火花機、配3臺華數機器人,同時配一臺三坐標測量儀、一臺AGV小車,組成一條微型模具智能制造自動化生產線。
模具制造智能工廠方案緊扣“中國制造2025”的主攻方向,具有鮮明的特色和先進性,建成后可實現高速高精國產數控系統、金屬加工和電火花加工設備及機器人協同工作,在業內率先實現模具制造的智能化。

展會詳細咨詢請登錄:http://www.dmpshow.com/